Scuola Materna Sherwood

Sherwood Nursery 1

Tipo: Scuola Materna

Luogo: Londra

Anno: 2024

Stato Lavori: Concept Design

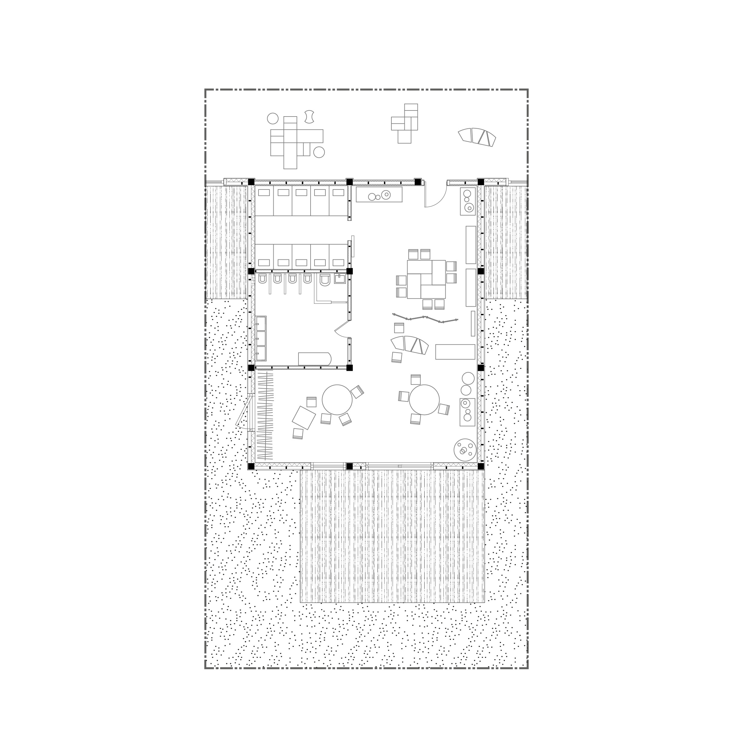
Il progetto concettuale della scuola materna Sherwood, situata a sud-ovest di Londra, si integra armoniosamente nel suo contesto naturale. Incastonata in un ampio campo brullo, la scuola materna presenta una copertura in vetro che segue l’orientamento del sole meridionale, garantendo ottimale luce naturale ed efficienza energetica. Ispirandosi ai parchi circostanti, la scuola materna Sherwood incorpora motivi e materiali che riflettono l’ambiente circostante, mettendo in mostra con orgoglio la sua struttura in legno.

Progettata con una profonda connessione alla natura, la scuola materna è strategicamente posizionata per massimizzare l’interazione dei suoi studenti con il mondo naturale. Si inserisce elegantemente nello spazio verde aperto, sfruttando la topografia per creare un layout dinamico. L’organizzazione architettonica prevede tre aule multifunzionali disposte parallelamente e collegate a laboratori didattici da un’ampia area comune, promuovendo un senso di comunità e facilitando ambienti di apprendimento collaborativo.

Nel complesso, la scuola materna Sherwood non mira solo a fornire uno spazio educativo funzionale e ispiratore, ma cerca anche di armonizzarsi con il suo contesto, promuovendo la sostenibilità e migliorando il benessere degli studenti e del personale attraverso un design attentamente studiato.